在校园的知识殿堂中,笔记是同学们思维的拓印,记录着求知的足迹。经济管理学院2024-2025学年第一学期学生优秀笔记评选活动于近日圆满收官,一份份凝聚着心血与智慧的笔记脱颖而出,宛如熠熠星辰,散发着独特的光芒,吸引着我们去探寻其中的奥秘与魅力。
01一等奖展示:
JG2451班 牟婕
课程:建筑材料 授课教师:罗宗强



JG2431 王娇
课程:基础会计 授课教师:李毅
课程:经济法 授课教师:马立博




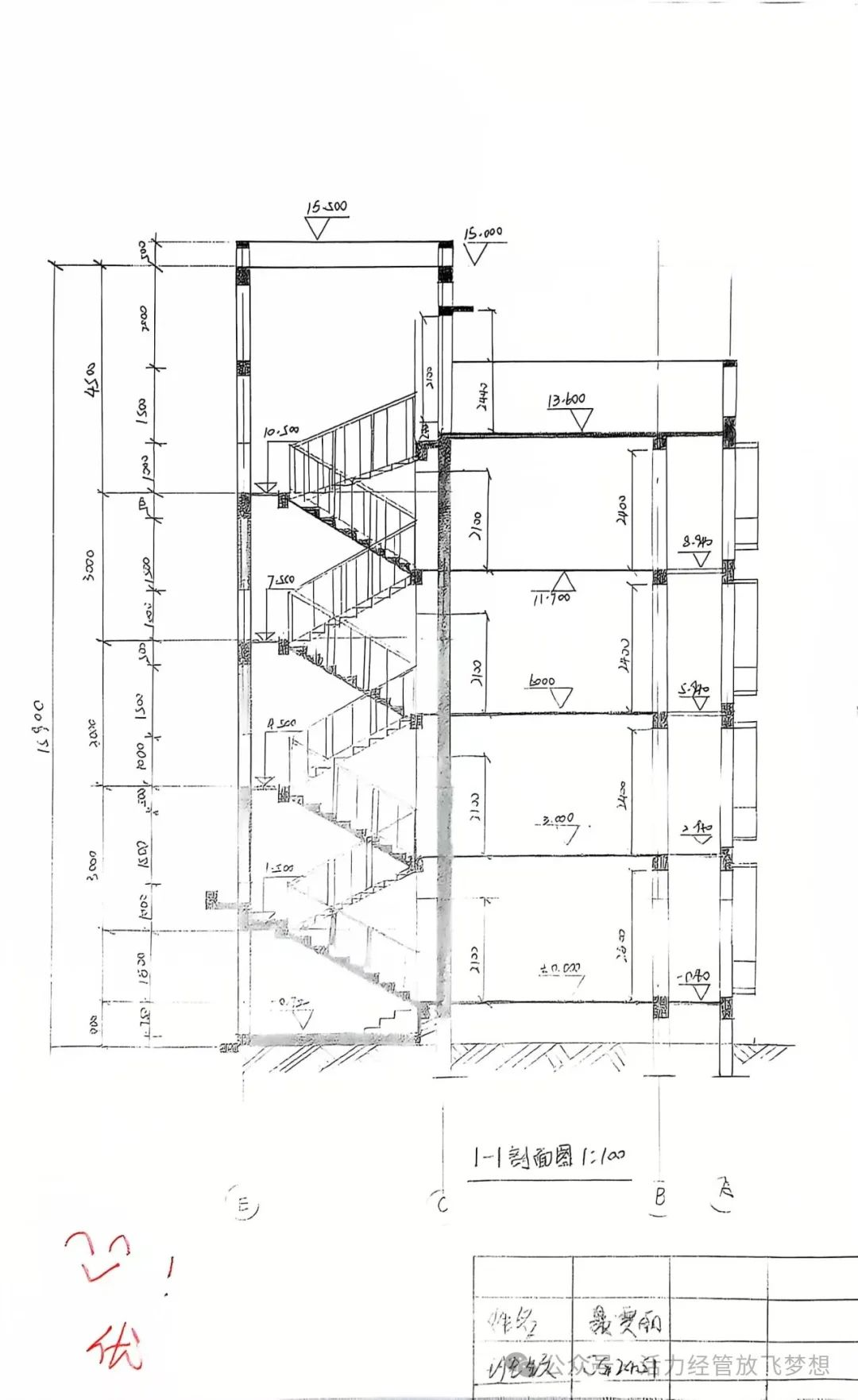
JG2451班 邓蕊
课程:高等数学 授课教师:谢宏斌



02二等奖展示
JG2332班 郑佳丽
课程:成本会计 授课教师:李长艳


JG2331班 赵绿霞
课程:管理会计 授课教师:周丹丹


JG2431班 穆雪婷
课程:经济法 授课教师:马立博


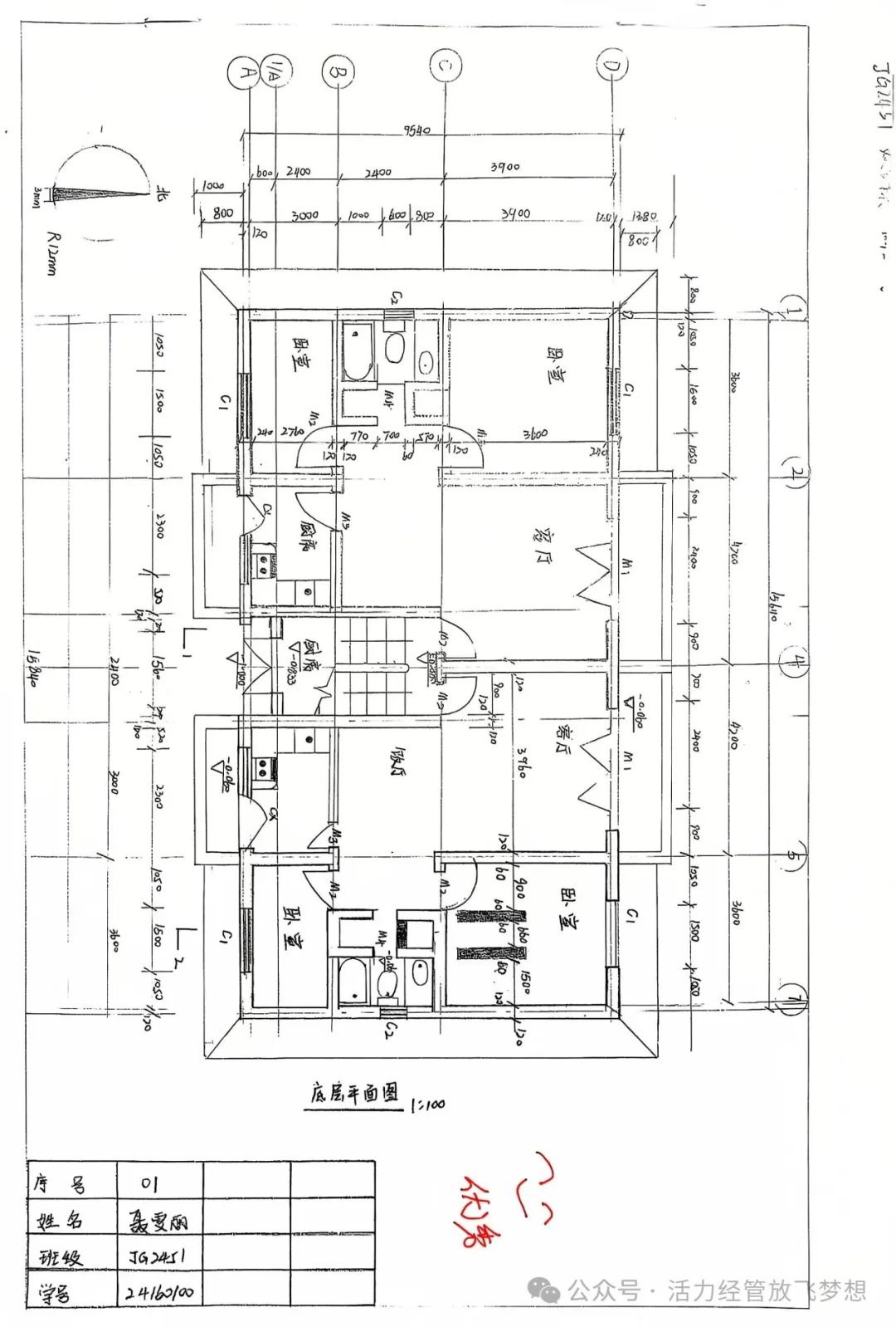
JG2451班 聂雯丽
课程:画法几何与工程制图 授课教师:张王金娃


JG2431班 吴天艳
课程:基础会计 授课教师:李毅



03三等奖展示
JG2352班 李宛华
课程:建筑财税基础 授课教师:周向东


JG2332班 朱和珍
课程:管理会计 授课教师:周丹丹


JG2391班 王宝鹏
课程:工程项目管理 授课教师:罗宗强



JG2411班 魏同妤
课程:电子商务基础 授课教师:林阳阳


JG2451班 谢灿灿
课程:建筑材料 授课教师:罗宗强



JG2331班 宋婷婷
课程:管理会计 授课教师:周丹丹


JG2451班 柏永丹
课程:军事理论 授课教师:李婷



JG2431班 李楠
课程:经济法 授课教师:马立博


这些优秀笔记不仅仅是文字与图案的堆砌,更是同学们学习态度与方法的凝聚。它们见证了同学们无数个日夜的专注与付出,是青春逐梦路上的坚实脚印,为其他同学树立了学习的标杆。希望全体同学以这些优秀为榜样,在求知的征程中不断奋进,以更加严谨、科学的方式书写属于自己的求知篇章,让知识的火种在一笔一划间传承不息,照亮未来的求学之路。
编辑:经济管理学院新闻媒体部
初审:王玥
终审:谢宏斌